REQUEST A TOUR If you would like to see this home without being there in person, select the "Virtual Tour" option and your agent will contact you to discuss available opportunities.
In-PersonVirtual Tour

$ 1,299,000
Est. payment /mo
Active
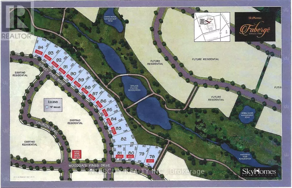
LOT 79 WOODGATE PINES DRIVE Vaughan (kleinburg), ON L4H3X5
UPDATED:
Key Details
Property Type Vacant Land
Listing Status Active
Purchase Type For Sale
Subdivision Kleinburg
MLS® Listing ID N12354767
Source Toronto Regional Real Estate Board
Property Description
Attention Builders/Developers! Vacant Lot available in this prestigious community of Kleinburg Crown Estates! Oversized pie shaped lot backing onto Ravine! Build your dream backyard oasis with plenty of space for a pool, patios, B.B.Q./cooking stations and entertainment areas. This spacious lot offers the potential for your perfect dream home of up to 7,600 Sq. Ft.! Close to downtown Kleinburg's shops and restaurants, Copper Creek Golf Club, McMichael Canadian Act Collections, Hwy 27 extension and much more. (id:24570)
Location
Province ON
Rooms
Kitchen 0.0
Exterior
Parking Features No
Community Features School Bus
View Y/N No
Private Pool No
Building
Sewer Sanitary sewer


