Toronto (bay Street Corridor), ON M5H4G5,311 Bay ST #3904
See all 49 photos
Toronto (bay Street Corridor), ON M5H4G5,311 Bay ST #3904
Toronto (bay Street Corridor), ON M5H4G5,311 Bay ST #3904
Toronto (bay Street Corridor), ON M5H4G5,311 Bay ST #3904
Toronto (bay Street Corridor), ON M5H4G5,311 Bay ST #3904
REQUEST A TOUR If you would like to see this home without being there in person, select the "Virtual Tour" option and your advisor will contact you to discuss available opportunities.
In-PersonVirtual Tour
Tue
2
Dec
Wed
3
Dec
Thu
4
Dec
$ 9,950
Save
New

311 Bay ST #3904 Toronto (bay Street Corridor), ON M5H4G5

2 Beds

2 Baths

1,800 SqFt


UPDATED:

Key Details

Property Type Single Family Home, Condo

Sub Type Condo

Listing Status Active

Purchase Type For Rent

Square Footage 1,800 sqft

Subdivision Bay Street Corridor

MLS® Listing ID C12584074

Bedrooms 2

Property Sub-Type Condo

Source Toronto Regional Real Estate Board

Property Description

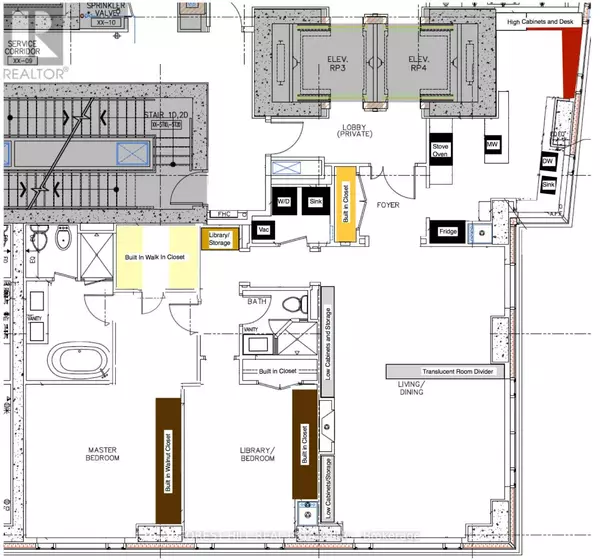
Fully Furnished Executive Condo At The St Regis Residences! Featured in Canadian Interiors Magazine with a One of a Kind Layout & Custom Floor Plan !. This Luxurious 2 Beds + 2 Baths Unit Also Boasts A Private Elevator Directly Into Your Vestibule. Thoughtfully Designed With Modern Finishes And Great Attention to Detail, Quality And Craftmanship! Located In the Heart Of The Financial District, PATH, Restaurants, Shopping and Much More. Some Key Features Include: 10' Hight Ceilings, Wireless Black Out Shades w Remote Control, Large Walk-In Closet, Re-designed Kitchen, Hardwood & Marble Flooring, Operating Windows That Overlook The City and CN Tower, WorkStation/Bar, Meile Appliances, Built in Cabinets, Walk-In Closet, This Condo Is One Of A Kind "04" Unit, Must See!! (id:24570)

Location

Province ON

Rooms

Kitchen 1.0

Extra Room 1 Ground level 4.6 m X 5.21 m Living room

Extra Room 2 Ground level 3.38 m X 5.21 m Dining room

Extra Room 3 Ground level 5.66 m X 3.81 m Kitchen

Extra Room 4 Ground level 6.7 m X 4.4 m Primary Bedroom

Extra Room 5 Ground level 4.39 m X 3.78 m Bedroom 2

Extra Room 6 Ground level 1.3 m X 2 m Laundry room

Interior

Heating Forced air

Cooling Central air conditioning, Ventilation system

Flooring Marble, Hardwood

Exterior

Parking Features Yes

Community Features Pets Allowed With Restrictions, Community Centre

View Y/N No

Total Parking Spaces 1

Private Pool No

Others

Ownership Condominium/Strata

Acceptable Financing Monthly

Listing Terms Monthly


Powered by: REALTOR.ca
Listed by FOREST HILL REAL ESTATE INC.
Sunny Pamma

Sunny Pamma

Agent | License ID: FPAMMSU

+1(778) 899-7996

GET MORE INFORMATION

Name
Phone*
Message

Go tour this home

311 Bay ST #3904